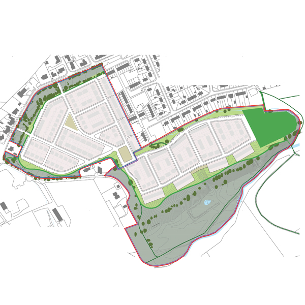
Working for Inverdunning Ltd, we were appointed to act as lead consultant for a proposed 300 home development on a prominent gap site in Stoneyburn, West Lothian.
The proposals seek to make positive connections to the existing settlement and to enhance access to the nearby open countryside to the south. A new central square provides a focal point and a network of new streets and pathways that address the extensive, mature planting around the periphery of the site. A Planning in Principle application was approved in 2022.
The focus of the masterplan was to create a series of streets of the right scale and character, interspersed with more high-quality public spaces that will foster a strong sense of community.


